2-izbový byt na predaj v Piešťanoch
V predpredaji ponúkame 2-izbové byty v budúcej výstavbe v širšom centre Piešťan.
Výstavba začne 12/2025 a potrvá do jari r. 2027.
Pôjde o menší bytový dom, ktorý má
- v suteréne parkovacie miesta,
- na dvoch poschodiach sú po štyri byty
- na poslednom 3. poschodí sú dva byty s veľkými terasami.
Trojpodlažná bytovka ponúka moderné dvojizbové byty v atraktívnej lokalite s výbornou občianskou vybavenosťou, ideálne pre rodiny i jednotlivcov, ktorí hľadajú komfortné bývanie s výhodnou dostupnosťou a dostatkom zelene.
Byty na Gaštanovej sú navrhnuté s dôrazom na svetlosť, kvalitné materiály a praktické riešenia.
Moderné vybavenie a prepojený priestor obývačky s kuchyňou vám zabezpečia pohodlie a vytvoria útulné miesto na spoločné chvíle i oddych.
V okolí je aj kompletná občianska vybavenosť pre váš pohodlný život – od nákupov až po voľnočasové aktivity, všetko pár minút od vášho domova.
Cez Bratislavskú ulicu sa rýchlo napojíte na diaľnicu.
Nezmeškajte svoju príležitosť na ideálne bývanie alebo investovanie!
Ponúkame komfortné bývanie v kúpeľnom meste!
Využite exkluzívnu možnosť rezervácie bytu v projekte Byty Gaštanová ešte pred začiatkom výstavby.
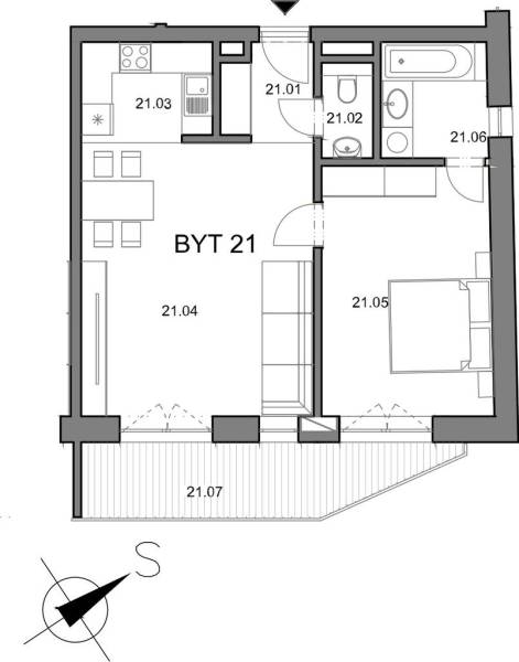
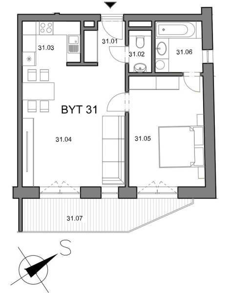
K dispozícií sú 2-izb. byty o týchto výmerách:
54m2 + 9m2 balkón + 3m2 pivnica
57m2 + 8m2 balkón + 3m2 pivnica
59m2 + 8m2 balkón + 3m2 pivnica
57m2 + 102m2 terasa + 3m2 pivnica (najvyššie poschodie)
Ceny od: 206.000,- Eur do 300.000,- Eur, vrátane DPH a prestrešeného parkovacieho miesta a pivničnej kobky.
Byty sú v holobyte, s klimatizáciou. V bytovom dome bude výťah a spoločná kotolňa pre vykurovanie.
Získajte svoj nový byt v predpredaji za zvýhodnenú cenu!
Ponúkame zľavu vo výške 10.000,- Eur pri kúpe bytu v predpredaji do 15.1.2026.
Využite exkluzívnu možnosť rezervácie bytu v projekte ešte pred začiatkom výstavby!
Ak Vás naša ponuka zaujala, napíšte mail na kluc@kluc.sk alebo reagujte cez portál na tento inzerát.
Využite služby spoľahlivej realitnej kancelárie, ktorá je na trhu už viac ako 23rokov! Ponúkame aj ďalšie služby súvisiace s nehnuteľnosťami: inžiniering, homestaging, interérové poradenstvo, služby architekta, znalca, hypotekárneho poradcu a právnika. Bližšie informácie nájdete aj na našej webovej stránke kluc.sk.
Podrobné informácie
Poloha nehnuteľnosti na mape
Piešťany, Slovensko










